SOLD - PLEASE CALL FOR OTHER PROPERTIES BY SQUARE FIFTEEN
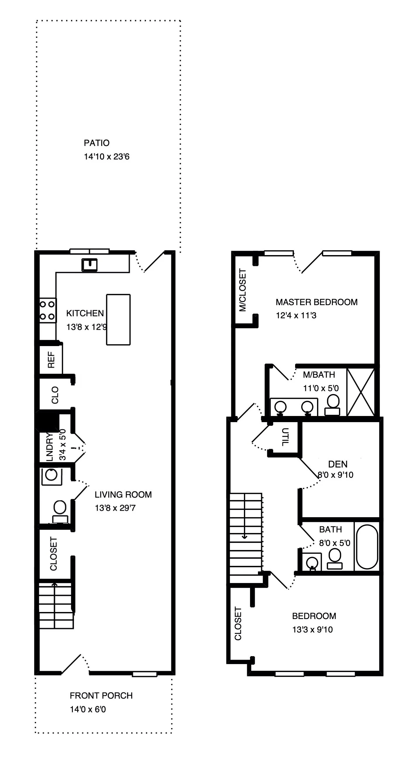
2 BEDROOMS + DEN / 2.5 BATHS / HARDSCAPED PATIO / ~1,300 sqft
SOLD PRICE: $1,028,500
Within steps of the US Capitol, Eastern Market, Stanton Park and Lincoln Park, this completely renovated home provides modern living in one of DC’s most charming and historic neighborhoods. Everything but the historic facade was replaced in 2019 including foundation, roof, windows, framing and systems - a stunning, brand new home just four blocks to the Library of Congress.
Upstairs you’ll find two ample bedrooms and two full bathrooms, plus a flexible bonus room that could serve as a guest room, den or a deluxe dressing room / closet.
The master bedroom features a Juliet balcony with floor to ceiling windows and an ensuite bath. Both bedrooms have charming views and LED bedside reading sconces
A stunning open kitchen overlooks the back patio through a large picture window. Walnut and white cabinets with brass hardware, gleaming white solid surface counters, tile backsplash, a large pantry and KitchenAid suite of stainless steel appliances that includes:
cafe door refrigerator with icemaker
gas, five-burner, slide-in range with convection oven
microwave and dishwasher
Bathrooms have Kohler toilets, Moen faucets, designer tile, walnut vanity cabinets, solid-surface vanity tops, illuminated vanity mirrors and the master bath has a glass shower enclosure
Light oak finish-in-place hardwood floors, recessed lighting and Emtek door hardware throughout
Full-sized, stacked Samsung front-loading washer & dryer
Rheem gas tankless hot water heater
Goodman gas heater / electric AC
New Pella window systems
Private, hardscaped rear patio with designer lighting for a stunning entertainment space.
98 Walk Score
7 min walk to Eastern Market Metro station (blue/orange/silver), dining, nightlife, CVS and Trader Joes
12 min walk to the US Capitol
Photos
Floor plan
Floor plan is provided for illustrative purposes only and while deemed accurate, proportion, measurements and relative layout are not guaranteed.
